C

LOAN SUMMARY | 307 Shannon Loop, Denver, NC 28037

BORROWER


Rate
Projected Term
Loan To ARV
Loan Amount
Investors
11%
12 months
70.0%
$167,980
0
Purpose
Loan Position
Total Loan Amount
Loan Status
New Construction
First Lien
$167,980
Repaid on 09/29/2021
Started on
Funded on
Repaid on
Matured on
08/14/2020
10/07/2020
09/29/2021
08/16/2021

FINANCIAL OVERVIEW

After Repair Value (ARV)
$240,000
Total Project Costs
$202,130
$37,870
GROUNDFLOOR
$167,980
$34,150
0%
Skin-in-the-Game
First Lien Loan
Cushion
Purchase Price
$13,000
Purchase Date
04/03/2019
Loan To ARV
70.0%
Loan To Total Project Cost
83.1%

Grade Factors

The following factors determine in part how the loan was graded:
(in descending order of importance)
Loan To ARV Score
4
10
Quality of Valuation Report
4
4
Skin-in-the-Game
3
10
Location
4
8
Borrower Experience
4
5
Borrower Commitment
1
1

VALUATION REPORTS

As Complete (ARV)
$240,000
Certified Independent Appraisal
Broker's Price Opinion
Borrower Provided Appraisal
Borrower Provided Comps

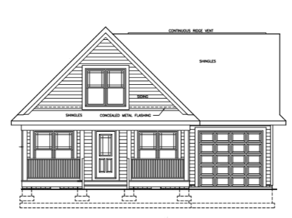
PROPERTY DESCRIPTION

307 SHANNON LOOP, DENVER, NC 28037
The Borrower intends to use the loan proceeds to complete a new construction. Upon completion, the Borrower intends to sell the property to repay the Groundfloor loan.

PROPERTY PHOTOS

MISCELLANEOUS

PROJECT SPECIFIC RISK FACTORS
  • The Borrower was advanced the money it needs to begin construction of this property on August 14, 2020 by Groundfloor Finance Inc. (“Groundfloor,” “we,” “us,” or “our”) or a wholly-owned subsidiary of Groundfloor. The Borrower will has begun construction of the property. If this offering is fully subscribed, Groundfloor will continue to administer and service the loan as further described in the Offering Circular.
  • The construction of the property may be extensive, and therefore subject to delays and other unexpected issues.
  • The construction will require permitting, and permits may not be obtained on time or may be denied.
  • There is no existing structure on this property, or if there is, it will be demolished, and a new structure built in its place.
  • The event of default on one Groundfloor note secured by this property will trigger default on all Groundfloor notes secured by this property. All LRO holders investing in LROs corresponding to notes secured by this property share the same priority in any recovery and recovered proceeds will be distributed on a pro-rata basis.
  • Please consult the Offering Circular