B

LOAN SUMMARY | 166 Vanira Avenue Southeast - A, Atlanta, GA 30315

BORROWER


Rate
Projected Term
Loan To ARV
Loan Amount
Investors
8%
12 months
55.6%
$277,960
0
Purpose
Loan Position
Total Loan Amount
Loan Status
New Construction
First Lien
$277,960
Repaid on 12/19/2022
Started on
Funded on
Repaid on
Matured on
11/25/2020
12/30/2020
12/19/2022
11/24/2021

FINANCIAL OVERVIEW

After Repair Value (ARV)
$1,000,000
Total Project Costs
$617,910
$382,090
GROUNDFLOOR
$555,910
$62,000
0%
Skin-in-the-Game
First Lien Loan
Cushion
Purchase Price
$216,000
Purchase Date
11/25/2020
Loan To ARV
55.6%
Loan To Total Project Cost
90.0%

Grade Factors

The following factors determine in part how the loan was graded:
(in descending order of importance)
Loan To ARV Score
5
10
Quality of Valuation Report
4
4
Skin-in-the-Game
2
10
Location
4
8
Borrower Experience
5
5
Borrower Commitment
1
1

VALUATION REPORTS

As Complete (ARV)
$1,000,000
Certified Independent Appraisal
Broker's Price Opinion
Borrower Provided Appraisal
Borrower Provided Comps

PROPERTY DESCRIPTION

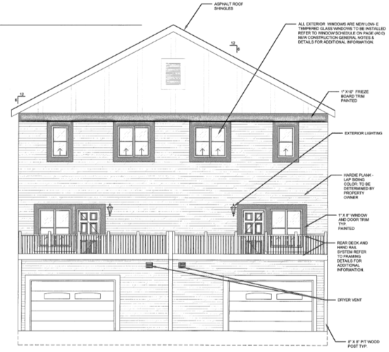
166 VANIRA AVENUE SOUTHEAST - A, ATLANTA, GA 30315
The Borrower intends to use the loan proceeds to complete a new construction. Upon completion, the Borrower intends to sell the property to repay the Groundfloor loan.

PROPERTY PHOTOS

MISCELLANEOUS

PROJECT SPECIFIC RISK FACTORS
  • The Borrower was advanced the money it needs to begin construction of this property on November 25, 2020 by Groundfloor Finance Inc. (“Groundfloor,” “we,” “us,” or “our”) or a wholly-owned subsidiary of Groundfloor. The Borrower will has begun construction of the property. If this offering is fully subscribed, Groundfloor will continue to administer and service the loan as further described in the Offering Circular.
  • The construction of the property may be extensive, and therefore subject to delays and other unexpected issues.
  • The construction will require permitting, and permits may not be obtained on time or may be denied.
  • There is no existing structure on this property, or if there is, it will be demolished, and a new structure built in its place.
  • This is a collateral loan secured by two properties, 166 Vanira Avenue Southeast, A, Atlanta, Ga, 30315 and 166 Vanira Avenue Southeast, B, Atlanta, Ga, 30315 . The ARV represents the combined value of all properties.
  • The event of default on one Groundfloor note secured by this property will trigger default on all Groundfloor notes secured by this property. All LRO holders investing in LROs corresponding to notes secured by this property share the same priority in any recovery and recovered proceeds will be distributed on a pro-rata basis.
  • Please consult the Offering Circular